
Zum Verkauf steht dieses Wohnhaus aus dem Jahr 1820 in dörflicher Lage. Das Gebäude verbindet eine massive Bauweise im Erdgeschoss mit traditioneller Fachwerkarchitektur im Obergeschoss und bietet auf ca. 138 m² Wohnfläche Raum zum Leben und Wohlfühlen. Das Grundstück umfasst 411 m² und lädt mit seinem kleinen, pflegeleichten Garten zum Entspannen und Gestalten ein.
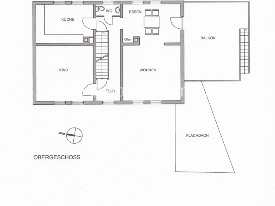
Das Haus verfügt über zwei Vollgeschosse: Im Erdgeschoss stehen auf ca. 62 m² ein Badezimmer mit Dusche, 2 Räume mit individuellen Gestaltungsmöglichkeiten und der Hauswirtschaftsraum zur Verfügung. Das Leben im Obergeschoss verteilt sich auf rund 76 m²: Hier sind die Küche, der gemütliche Wohn- und Essbereich mit Kamin und ein sehr großzügiger Balkon neben einem weiteren Zimmer vorhanden.
Die letzte Modernisierung galt der Installation einer Holzpellet-Zentralheizung mit Pufferspeicher und Pelletlager.
Dieses Haus vereint historischen Charakter mit zeitgemäßer Ausstattung. Die Verbindung von Fachwerkcharme, modernisierter Haustechnik und einer ruhiger Dorflage macht es zu einem idealen Zuhause für alle, die ein behagliches Wohnumfeld mit Geschichte und Zukunft suchen.
Interessiert? Dann zögern Sie nicht, Kontakt mit uns aufzunehmen!
Wir sind telefonisch oder per E-Mail für Ihre Fragen und Anliegen erreichbar. Bitte senden Sie Ihre Anfrage schriftlich über das jeweilige Immobilienportal. So erhalten Sie schnell Zugang zum vollständigen Exposé.
Falls Sie eine Besichtigung wünschen, dann prüfen Sie im Vorfeld die Finanzierung und bringen Sie bitte die Bestätigung mit. Wir können Ihnen auch gerne eine Finanzierung anbieten.
Baujahr 1820
dörfliche Lage
EG massiv, OG Fachwerkbauweise
Garten
Grundstücksgröße 411 m²
Wohnfläche ca. 138 m²
EG ca. 62 m², OG ca. 76 m²
2 Vollgeschosse
1 Bad mit Dusche im EG
1 WC im OG
Einbauküche
Pelletzentralheizung
Elektrik mit FI-Schalter
Glasfaseranschluss
Modernisierungen:
2021 Holzpellet-Heizung Fröling PE1 – 15 KW
mit Pufferspeicher (160 L) und Pelletlager (Sacksilo)
2025 Innenwand mit Kalziumsilikatplatten saniert (tlw.)
2000 Sanierung Balkon
2015 bis 2019 Fenster im EG, Hauseingangs-, Balkontür
Weitere Angaben:
Objektart: Einfamilienhaus
Ort: 31061 Alfeld OT Brunkensen
Land: Niedersachsen
Kaufpreis: 98.000 EUR
Provision: 3,57 % inkl. MwSt.
Energiebedarfsausweis: 349,8 kWh(m²*a)
Ausstelldatum: 20.07.2025
wesentlicher Energieträger: Holzpellets
Energiekennwert: H
Der Käufer zahlt im Erfolgsfall eine Maklerprovision in Höhe von 3,57 % inkl. 19 % MwSt. Die Provision errechnet sich aus dem beurkundeten Kaufpreis.
Da wir Objektangaben nicht selbst ermitteln, übernehmen wir hierfür keine Gewähr. Dieses Exposee ist nur für Sie persönlich bestimmt. Eine Weitergabe an Dritte ist an unsere ausdrückliche Zustimmung gebunden und unterbindet nicht unseren Provisionsanspruch bei Zustandekommen eines Vertrages.
Alle Gespräche sind über unser Büro zu führen. Bei Zuwiderhandlung behalten wir uns Schadenersatz bis zur Höhe der Provisionsansprüche ausdrücklich vor. Zwischenverkauf ist nicht ausgeschlossen.
Bitte bewahren Sie die Privatsphäre und sehen Sie vom Betreten des Grundstücks ohne unsere Begleitung ab.
Sie haben die Möglichkeit, sich bei einem informatorischen Beratungsgespräch zum Energieausweis durch einen Energieberater der Verbraucherzentrale Bundesverband (vzbv) zu informieren.
Anette Dettmer Immobilien ist zertifiziert nach DIN EN 15733 (Dienstleistung von Immobilienmaklern) DIAZert.
Der Erholungsort Brunkensen ist ein Ortsteil der Stadt Alfeld (Leine) mit ca. 850 Einwohnern. Durch den in einem Tal zwischen Sieben Bergen und Hils gelegenen Ort fließt der saubere Bach "Glene", in dem es noch Forellen gibt und der dem sehenswerten Glenetal seinen Namen gegeben hat.
Ein schön gelegenes Freibad befindet sich im Nachbarort Hohenbüchen und die Sporthalle ist fußläufig erreichbar.
Busverbindungen bestehen mehrmals täglich nach Alfeld.
Die Stadt Alfeld (Leine) liegt im Süden des Landkreises Hildesheim und besitzt eine gute Infrastruktur mit gut sortierten Einkaufsmöglichkeiten. Durch die nahegelegene B3 sind die nächstgrößeren Städte Hildesheim, Hannover und Einbeck in unter einer Stunde Fahrtzeit zu erreichen. Der Alfelder Bahnhof bietet ebenso eine stündliche Anbindung an die genannten Städte in Nord-Süd-Richtung.
Kindergärten, zwei Grundschulen, alle weiterführenden Schulen und mehrere Seniorenheime sind in Alfeld vorhanden. Die Freizeitgestaltung kommt durch eine Musikschule, Sport- und Theatervereine sowie ein Allwetterbad und ein Kino sicherlich nicht zu kurz.
Wenn Sie die Immobilien-Karte anzeigen, übertragen Sie Daten an Google Maps (Datenschutzerklärung).
Die dargestellte Position der Immobilie ist nur eine ungefähre Angabe.