
Diese Maisonette-Wohnung in einem 2-Familienhaus ist frisch für Sie modernisiert: Elektrik, Gasetagenheizung, Wände und Fußböden und das Tageslichtbad mit separatem WC sind komplett erneuert.
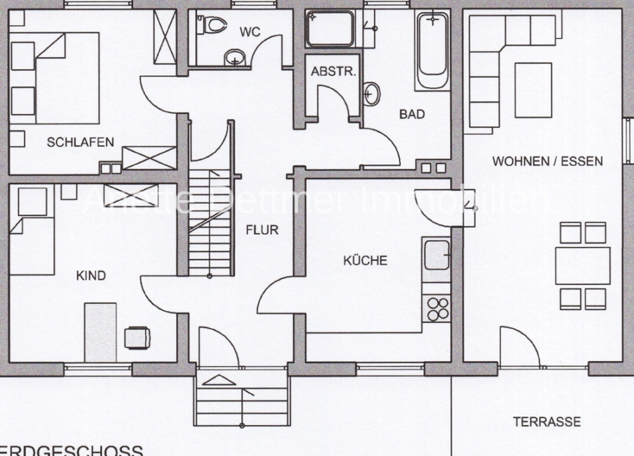
Im Erdgeschoss wohnen Sie – mit Zugang durch die Küche – in einem großzügigen Wohn- und Esszimmer. Hier haben Sie den Austritt zu einer kleinen sichtgeschützten Terrasse. Zwei weitere Zimmer, den Sanitärbereich und den Keller erreichen Sie über den Flur im Erdgeschoss. Das Tageslichtbad ist mit Dusche, Waschtisch und Wanne ausgestattet. Hier ist auch Platz für die Waschmaschine. Über die Original-Treppe des Hauses gelangen Sie in das Obergeschoss und einem dritten Zimmer. Die Wohnung hat einen eigenen Zugang.
Der Gartens hinter dem Haus gehört zum Angebot.
Nutzen Sie den 360°Rundgang für Ihre virtuelle Besichtigung.
Weitere Informationen und Angebote unter: http://www.dettmer-immobilien.de.
ruhige Wohnlage
Maisonette
Bad mit Wanne inkl. Duschabtrennung und Dusche
Terrasse und Freisitz hinter dem Haus
Abstellraum
Kelleranteil
Modernisiert in 2023
Kaution: 3 KM
Heizkosten: nach Verbrauch
Nebenkosten: ca. € 110,-
(exkl. Vorauszahlung Wasser)
Heizungsart: Gaszentralheizung
Baujahr Gebäude: 1900
Energieausweis: Bedarfsausweis vom 17.05.2023
Endenergiebedarf: 224 kWh/(m²·a)
Hauptenergieträger: Gas
Alle Daten in diesem Exposee beruhen auf Angaben des Vermieters. Für die Richtigkeit der Vermieter-, Anbieter- und Angebotsangaben kann keine Haftung übernommen werden. Irrtümer bleiben vorbehalten. Eine Zwischenvermietung ist nicht ausgeschlossen.
Anette Dettmer Immobilien ist zertifiziert nach DIN EN 15733 (Dienstleistung von Immobilienmaklern) DIAZert.
In der Gemeinde Duingen leben etwa 5.100 Einwohner. Der Ort liegt in einer reizvollen Naturlandschaft mit großen Waldgebieten und in einer ausgedehnten Seenlandschaft, die zu einem großen Teil unter Naturschutz stehen. Infrastrukturell hat Duingen einiges zu bieten. So finden Sie hier verschiedene Einkaufsmöglichkeiten, Schulen, Kindertagesstätten, Ärzte und Apotheken. Ein Hallenbad, ein Reiterhof und das bekannte Töpfermuseum runden das kulturelle Angebot ab. Für Freizeit und Erholung bietet die nahe gelegene Naturlandschaft eine ausgewogene Basis für jeden Geschmack. Bis Hildesheim sind es ca. 30 km, bis nach Alfeld etwa 10 km mit dem Auto. Die Landeshautstadt Hannover liegt rund 50 km von Duingen entfernt.
Wenn Sie die Immobilien-Karte anzeigen, übertragen Sie Daten an Google Maps (Datenschutzerklärung).
Die dargestellte Position der Immobilie ist nur eine ungefähre Angabe.