
Zum Verkauf steht dieses besondere Wohnhaus aus dem Jahr 1903 in ruhiger Feldrandlage. Die Immobilie vereint solide Fachwerkbauweise des Altbaus mit den massiven Anbauten und bietet auf ca. 125 m² Wohnfläche ein behagliches Zuhause mit individuellem Charakter.
Das 342 m² große Grundstück überzeugt durch einen kleinen, pflegeleichten Garten, der vielfältige Nutzungsmöglichkeiten bietet. Ein Gartenhaus, ein Geräteschuppen, ein kleines Gewächshaus sowie drei Hochbeete laden zum Entspannen, Gärtnern und Gestalten ein.
Raumaufteilung
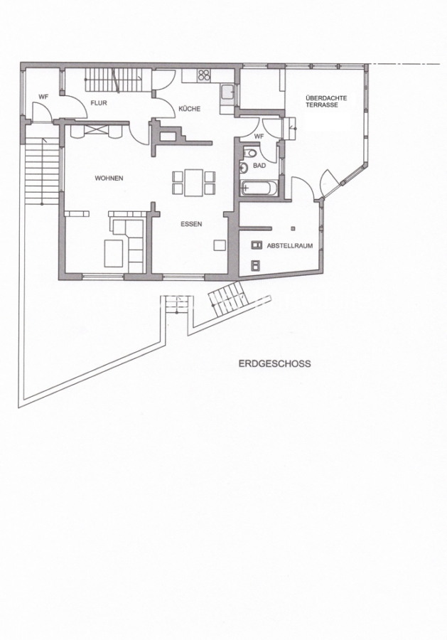
Erdgeschoss (ca. 76 m²):
Badezimmer mit Badewanne
Kombiniertes Wohn- und Esszimmer mit individuellen Gestaltungsmöglichkeiten
Küche
Windfang und Flur
Große, überdachte Terrasse mit Blick ins Grüne
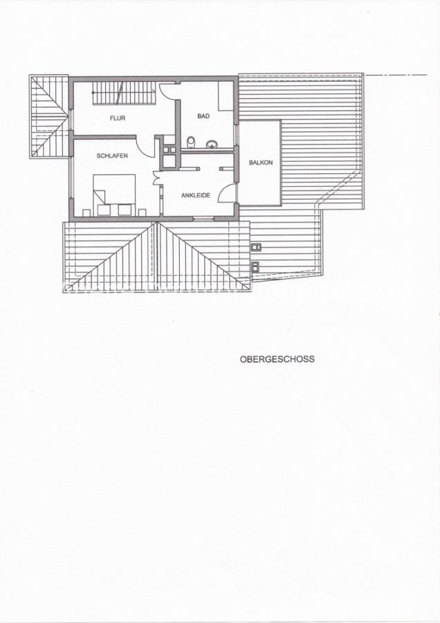
Obergeschoss (ca. 49 m²):
Neues Badezimmer mit ebenerdiger Dusche
Schlafzimmer
Ankleidezimmer mit Zugang zum überdachten Balkon
Balkon mit freiem Blick in die Natur
Ausstattung & Modernisierungen
Zu den letzten Modernisierungsmaßnahmen zählen die Installation eines Pellet-Ofens im Erdgeschoss sowie die Erneuerung der Kunststoff-Öltanks im Keller und ein Turbo-Brenner an der Ölheizung.
Diese Immobilie eignet sich ideal für Käufer, die den Charme eines historischen Hauses schätzen und naturnahes Wohnen in ruhiger Lage suchen.
Interessiert? Dann zögern Sie nicht, Kontakt mit uns aufzunehmen!
Wir sind telefonisch oder per E-Mail für Ihre Fragen und Anliegen erreichbar. Bitte senden Sie Ihre Anfrage schriftlich über das jeweilige Immobilienportal. So erhalten Sie schnell Zugang zum vollständigen Exposé.
Falls Sie eine Besichtigung wünschen, dann prüfen Sie im Vorfeld die Finanzierung und bringen Sie bitte die Bestätigung mit. Wir können Ihnen auch gerne eine Finanzierung anbieten.
Baujahr 1903
Anbau Wohnen/Essen1991
Anbau Eingangsbereich/Windfang 1969
Anbau Bad EG 1965
dörfliche Lage
Wände Altbau Backstein und Lehm (Fachwerk) mit 6 cm Glaswolle und Klinkerriemchen
Wände Anbau massiv mit Klinkerriemchen
Garten mit Nebengebäuden
Garage auf separatem angrenzendem Grundstück
Kunststofföltanks 2023
Pelletofen im Esszimmer
Kunststofffenster mit Isolierverglasung und Rollläden
Fußböden: Parkett, Laminat, Fliesen
Grundstücksgröße 363 m² (Wohnhaus 342 m², Garage 21 m²)
Wohnfläche ca. 125 m²
EG ca. 76,13 m², OG ca. 48,58 m²
2 Vollgeschosse
ausgebautes Dachgeschoss mit 2 Zimmern und Duschbad ca. 35,57 m² (nicht in Wohnfläche enthalten)
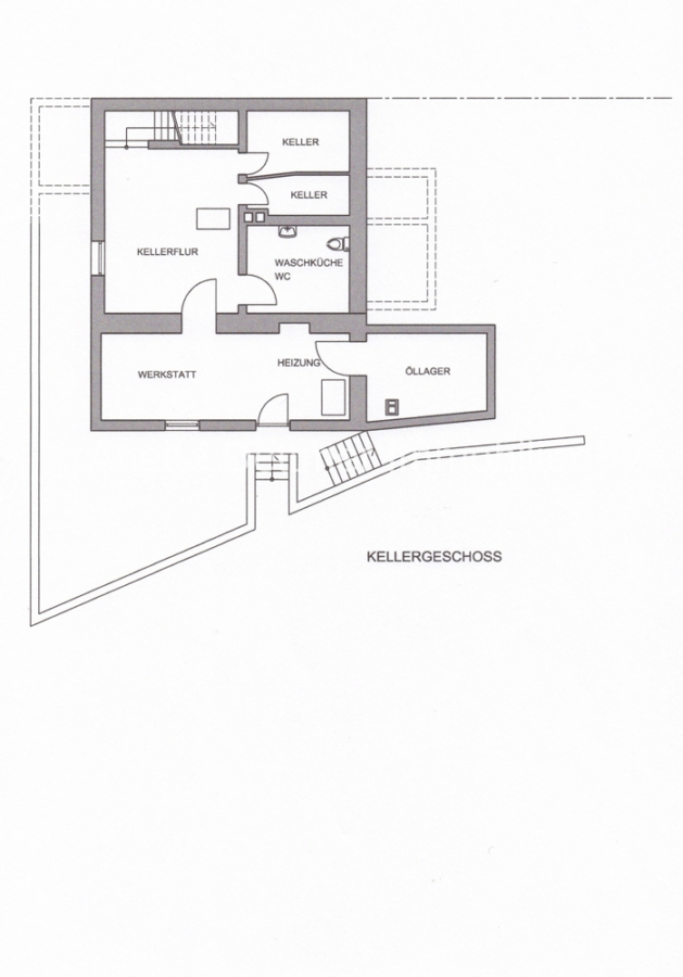
Vollkeller
1 Bad mit Wanne im EG
1 Bad mit ebenerdiger Dusche im OG
1 Bad mit Dusche im DG
1 WC im KG
Einbauküche
Ölzentralheizung
neuer Turbo-Brenner ca. 4 Jahre alt
Warmwasserspeicher Strom
Elektrik mit Kippsicherungen
Weitere Angaben:
Objektart: Einfamilienhaus
Ort: 31061 Alfeld OT Föhrste
Land: Niedersachsen
Kaufpreis: 99.500 EUR
Provision: 3,57 % inkl. MwSt.
Energiebedarfsausweis: 349,8 kWh(m²*a)
Ausstelldatum: 29.01.2025
wesentlicher Energieträger: Heizöl
Baujahr Wärmeerzeuger 1992
Energiebedarf 342,6 kWh/(m²*a)
Energiekennwert: H
Der Käufer zahlt im Erfolgsfall eine Maklerprovision in Höhe von 3,57 % inkl. 19 % MwSt. Die Provision errechnet sich aus dem beurkundeten Kaufpreis.
Da wir Objektangaben nicht selbst ermitteln, übernehmen wir hierfür keine Gewähr. Dieses Exposè ist nur für Sie persönlich bestimmt. Eine Weitergabe an Dritte ist an unsere ausdrückliche Zustimmung gebunden und unterbindet nicht unseren Provisionsanspruch bei Zustandekommen eines Vertrages.
Alle Gespräche sind über unser Büro zu führen. Bei Zuwiderhandlung behalten wir uns Schadenersatz bis zur Höhe der Provisionsansprüche ausdrücklich vor. Zwischenverkauf ist nicht ausgeschlossen.
Bitte bewahren Sie die Privatsphäre und sehen Sie vom Betreten des Grundstücks ohne unsere Begleitung ab.
Sie haben die Möglichkeit, sich bei einem informatorischen Beratungsgespräch zum Energieausweis durch einen Energieberater der Verbraucherzentrale Bundesverband (vzbv) zu informieren.
Anette Dettmer Immobilien ist zertifiziert nach DIN EN 15733 (Dienstleistung von Immobilienmaklern) DIAZert.
In Föhrste gibt es einen Kindergarten sowie eine Grundschule und ein reges Vereinsleben mit einer neuen Sporthalle. Die Stadt Alfeld (Leine) liegt im Süden des Landkreises Hildesheim und besitzt eine gute Infrastruktur mit Krankenhaus und gut sortierten Einkaufsmöglichkeiten in der Fußgängerzone.
Durch die nahegelegene B3 sind die nächstgrößeren Städte Hildesheim, Hannover und Einbeck in unter einer Stunde Fahrtzeit zu erreichen. Der Alfelder Bahnhof bietet ebenso eine stündliche Anbindung an die genannten Städte in Nord-Süd-Richtung.
Kindergärten, zwei Grundschulen, alle weiterführenden Schulen und mehrere Seniorenheime sind in Alfeld vorhanden. Die Freizeitgestaltung kommt durch eine Musikschule, Sport- und Theatervereine sowie ein Allwetterbad sicherlich nicht zu kurz.
Das Grundstück befindet sich am Ortrand in Feldrandlage. Zufahrt über eine keine Gasse.
Eine Bushaltestelle gibt es in der Nähe.
Kindergarten 50 m | Grundschule 500 m | Zentrum 3 km
Wenn Sie die Immobilien-Karte anzeigen, übertragen Sie Daten an Google Maps (Datenschutzerklärung).
Die dargestellte Position der Immobilie ist nur eine ungefähre Angabe.