
Suchen Sie eine Anlageimmobilie mit modernisiertem Altbaucharme? Hier können Sie sich Ihren Mieter im Erdgeschoss selbst aussuchen. Oder Sie ziehen selbst in Erdgeschoss-Wohnung ein und nutzen die Mieteinnahmen für Ihre Finanzierung. Dann könnte dieses gepflegte und modernisierte Zweifamilienhaus genau das Richtige für Sie sein!
Die Immobilie befindet sich in Alfeld OT Gerzen und ist 1906 auf einem 747 m² großen Grundstück errichtet worden. 1994 erfolgte der An- und Erweiterungsbau.
Durch die ruhige und familienfreundliche Umgebung ist dieses eine beliebte Wohnlage.
197 m² Wohnfläche verteilen sich auf zwei Wohneinheiten mit Größen zwischen ca. 103 m² und ca. 95 m².
Der schön angelegte Garten kann von den Mietparteien gemeinschaftlich genutzt werden, die Wohnungen im EG und DG verfügen jeweils über einen Balkon.
Auf dem Grundstück gibt es 2 Terrassen, 1 Garage und 1 Carport jeweils mit 1Vorbereitung für Wallboxen.
Auf Wunsch der Mieter im Dachgeschoss erscheinen keine Fotos.
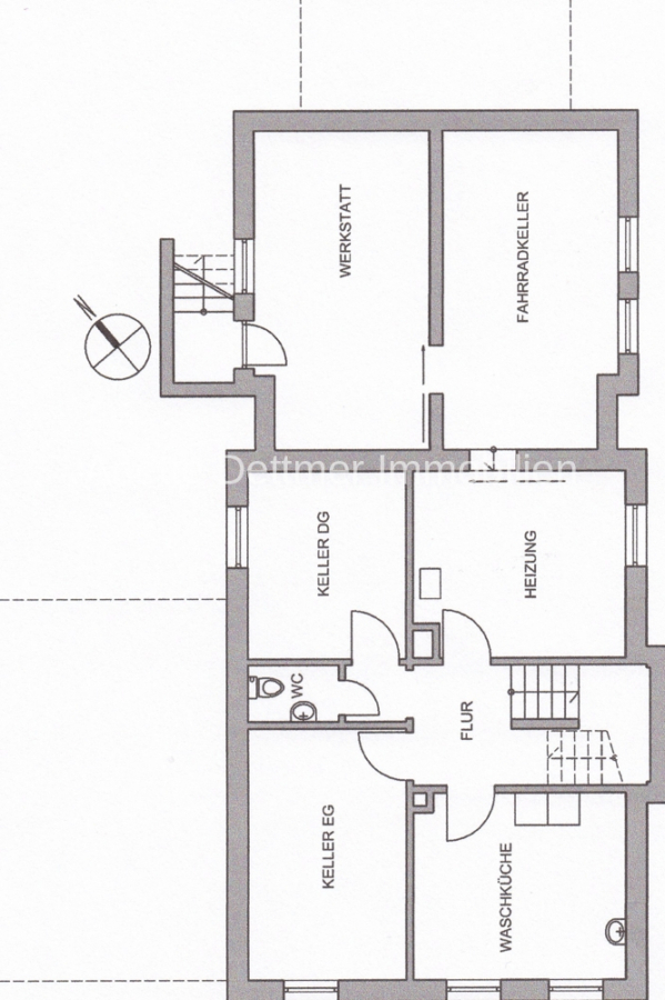
Zwei ausgebaute Räume im Spitzboden werden von den Mietern im Dachgeschoss genutzt, sind jedoch nicht in der Wohnfläche erhalten.
Die Jahresnettokaltmiete belief sich bei Vollvermietung auf 13.560 €.
Hier wohnt man gerne! Die Immobilie überzeugt durch eine solide, massive Bauweise und zeitgemäße Ausstattung.
Interessiert? Dann zögern Sie nicht, Kontakt mit uns aufzunehmen!
Wir sind telefonisch oder per E-Mail für Ihre Fragen und Anliegen erreichbar. Bitte senden Sie Ihre Anfrage schriftlich über das jeweilige Immobilienportal. So erhalten Sie schnell Zugang zum vollständigen Exposé.
Falls Sie eine Besichtigung wünschen, dann prüfen Sie im Vorfeld die Finanzierung und bringen Sie bitte die Bestätigung mit. Wir können Ihnen auch gerne eine Finanzierung anbieten.
Altbau 1906 (Denkmalschutz)
Anbau 1994
Grundstück 747 m²
Wohnung DG ca. 102,54 m² Wohnfläche (vermietet)
Wohnung EG ca. 94,65 m² Wohnfläche (seit 01.10.2025 frei)
Wohnfläche gesamt ca. 197,19 m²
Modernisierungen:
2024 EG Altbau
Vinyl-Fußbodenbeläge
3 Fenster
2023 EG Altbau
Bad
4 Heizkörper
Elektroleitungen Altbau
Wände, Decken, Türen u. Rahmen gestrichen
2022
Heizungsanlage
Sicherungsschrank, Zuleitungen EG inkl. FI-Schalter
Zuleitungen Garage u. Carport für Wallboxen
Pflastersteine Hauseinfahrt
2021
Überdachung Kellertreppe
Garagendach
2020 Anbau
Außentreppe
2018
Wasserenthärtungsanlage
Garagentor mit elt. Antrieb
je Wohnung 1 Durchlauferhitzer für Warmwasser
2017
komplette Dachsanierung
2016 DG
Einbauküche inkl. Elektrogeräten
Laminatboden
Elektrik überprüft
2014
Klingelanlage
2013 DG Altbau
sämtliche Heizkörper
2 neue Fenster
2012 DG
Renovierung vor 1. Vermietung
Nettokaltmiete bei Vollvermietung 1.130 €
Glasfaseranschluss
Gas-Brennwertheizung 2022
Energiebedarfsausweis: 228,6 kWh/(m²*a)
Energieträger: Erdgas LL
Energiekennwert: G
Denkmalschutz auf vorderem Haus
Der Käufer zahlt im Erfolgsfall eine Maklerprovision in Höhe von 3,57 % inkl. 19 % MwSt. Die Provision errechnet sich aus dem beurkundeten Kaufpreis.
Da wir Objektangaben nicht selbst ermitteln, übernehmen wir hierfür keine Gewähr. Dieses Exposè ist nur für Sie persönlich bestimmt. Eine Weitergabe an Dritte ist an unsere ausdrückliche Zustimmung gebunden und unterbindet nicht unseren Provisionsanspruch bei Zustandekommen eines Vertrages.
Alle Gespräche sind über unser Büro zu führen. Bei Zuwiderhandlung behalten wir uns Schadenersatz bis zur Höhe der Provisionsansprüche ausdrücklich vor. Zwischenverkauf ist nicht ausgeschlossen.
Bitte bewahren Sie die Privatsphäre und sehen Sie vom Betreten des Grundstücks ohne unsere Begleitung ab.
Sie haben die Möglichkeit, sich bei einem informatorischen Beratungsgespräch zum Energieausweis durch einen Energieberater der Verbraucherzentrale Bundesverband (vzbv) zu informieren.
Anette Dettmer Immobilien ist zertifiziert nach DIN EN 15733 (Dienstleistung von Immobilienmaklern) DIAZert.
Die Stadt Alfeld (Leine) liegt im Süden des Landkreises Hildesheim und besitzt eine gute Infrastruktur mit Krankenhaus und gut sortierte Einkaufsmöglichkeiten in der Fußgängerzone. Durch die nahegelegene B3 sind die nächstgrößeren Städte Hildesheim, Hannover und Einbeck in unter einer Stunde Fahrtzeit zu erreichen. Der Alfelder Bahnhof bietet ebenso eine stündliche Anbindung an die genannten Städte in Nord-Süd-Richtung.
Kindergärten, zwei Grundschulen, alle weiterführenden Schulen und mehrere Seniorenheime sind in Alfeld vorhanden. Die Freizeitgestaltung kommt durch eine Musikschule, Sport- und Theatervereine sowie ein Allwetterbad und ein Kino sicherlich nicht zu kurz.
Die Immobilie befindet sich in ruhiger Lage im Alfelder Ortsteil Gerzen. Innerhalb von fünf Minuten erreichen Sie mit dem Auto die Innenstadt. Eine Bushaltestelle gibt es in unmittelbarer Nähe und der Kindergarten ist zu Fuß erreichbar.
Kindergarten 600 m | Grundschule 2 km | Realschule 3,70 km | Gymnasium 4 km | Zentrum 2,70 km
Wenn Sie die Immobilien-Karte anzeigen, übertragen Sie Daten an Google Maps (Datenschutzerklärung).
Die dargestellte Position der Immobilie ist nur eine ungefähre Angabe.